Packhäuser "The City of Tomorrow", Malmö, Schweden

Gestartet als innovatives Projekt "The City of Tomorrow" auf der "Bo 01 Housing Expo" im Jahr 2001 wurde hier ein beispielhaft nachhaltiges Wohnkonzept erdacht und als gleichnamige moderne Wohnsiedlung "Bo 01" realisiert. Baujahr: 2000-2001.
Architekten Karmebäck & Krüger: Entwurfs-, Genehmigungs- und Ausführungsplanung.

Ansichten Packhäuser The City of Tomorrow, Malmö, Schweden

Ansichten

Auf dem Grundstück wurden insgesamt 6 Stadthäuser (Reihenhofhäuser) in unterschiedlichen Farben errichtet.

Fassadendetail Packhäuser The City of Tomorrow, Malmö, Schweden

Fassadendetail

Belichteter Eingangsbereich mit Beleuchtung, Hausnummer und Briefkasten/Klingel.

Gartenfassaden Packhäuser The City of Tomorrow, Malmö, Schweden

Gartenansicht

Jedes Haus verfügt über einen eigenen Garten mit Anbau oder Gartenhaus.

Fassaden Packhäuser The City of Tomorrow, Malmö, Schweden

Fassaden

Die Fassaden wahren den ortstypischen Bebauungscharakter der stadträumlichen Nachbarschaft.

Wohnsiedlung "European Village", Malmö, Schweden

Im Anschluss der BO1 im Jahr 2001 in Malmö wurde "European Village" im Ramen der Internationale Bauausstellung ausgedehnt. 22 gereihte Stadtsvillen entlang des Kanals.
Architekten Karmebäck & Krüger: Entwurfs-, Genehmigungs- und Ausführungsplanung.

Ansichten European Village, Malmö, Schweden

Fassade & Grundriss

Strassenfassade und Grundriss 1.OG des Reihenhauses.

Fassade und Grundriss, European Village, Malmö, Schweden

Ansichten

Neubau von 22 gereihte Stadtsvillen in verschieden Farben entlang des Kanals.

Fassadendetail European Village, Malmö, Schweden

Fassadendetail

Betont bunt - strahlende Farben verleihen Fassaden der Villen eine einzigartige funktionale Ästhetik.

Lageplan European Village, Malmö, Schweden

Lageplan

Jede Wohnung hat einen herrlichen Blick auf den Kanal.

Hotel Nordperd, Göhren, Insel Rügen

Erweiterungsbau Wellness- und Poolanlage. Fertigstellung: 2005.
Dipl.-Ing. Architekt Jürgen Krüger, Berlin: Entwurfs–, Genehmigungs– und Ausführungsplanung.

Hotel Nordperd, Insel Rügen

Lageplan

Außenanlagen zum Hotel Nordperd, Göhren, Insel Rügen.

Spandauer Wasserturm, Berlin

Poollandschaft

Poollandschaft des Hotels mit mehreren Außenterrassen mit Blick zur Ostsee.

Hotel Nordperd, Göhren, Insel Rügen

Pool

Indoorpool-Landschaft mit einzigartigem Panoramablick Richtung Ostsee.

Hotel Bansin, Insel Usedom

Erweiterungsbau Wellness- und Poolanlage. Fertigstellung: 2006.
Dipl.-Ing. Architekt Jürgen Krüger, Berlin: Entwurfs–, Genehmigungs– und Ausführungsplanung.

Schwimmbad Strandhotel Bansin

Schwimmbad

Erweiterung des Schwimmbades, 2005/06.

Strassenansicht Pool Strandhotel Bansin

Pool Strassenansicht

Strassenansicht mit dem Fensterfront des Innenpools.

Grundriss Travel Charm Strandhotel Bansin

Grundriss

Grundriss des Hotels mit der Poolanlage-Erweiterung.

Projekt Bungalow Resort Hotel 5*, Tabarka, Tunesien.

Bungalow Resort Hotel 5* in Tabarka, Tunesien. Projekterstellung: 2006.
Dipl.-Ing. Architekt Jürgen Krüger, Berlin: Entwurfsplanung.

Poollandschaft & Bungalows Hotel in Tunesien

Poollandschaft & Bungalows

Terrassenangelegte Poollandschaft & Bungalows.

Bungalows Fassadenansichen

Fassadenansichen

Die Bungalows sind im landestypischen Stil mit strahlend weißer Fassade und blauen Elementen erbaut.

Bungalow Grundrisse EG & 1.OG

Grundrisse EG & 1.OG

Der achteckige Bungalow beeinhaltet Schlafzimmer, Bad, Terrase, Umkleide, Wohnküche und Wohnzimmer.

Wohnhaus Wohnen 50+, Malmö, Schweden

Im Herzen von Malmö entstehen 50 Stück 2-Zimmer-Wohnungen für Menschen im Alter von 50+. Fertigstellung: 2010.
Dipl.-Ing. Architekt Jürgen Krüger, Berlin: Entwurfs-, Genehmigungs- und Ausführungsplanung.

Ansicht Wohnhaus Wohnen 50+

Ansicht

Außenansicht Wohnanlage Wohnen 50+ in Zentrum von Malmö.

3d-Visualisierung des Wohnhauses Wohnen 50+

Perspektive

3d-Visualisierung des Wohnhauses Wohnen 50+ in Malmö.

Grundriss des Wohnhauses Wohnen 50+

Grundriss

Grundriss des Wohnhauses Wohnen 50+, 1.OG, Malmö.

Spandauer Wassertürme, Berlin

Neu– und Umbau Spandauer Wassertürme, 27 WE, Akazienallee 35–39 bzw. Spandauer Damm 165/167. Fertigstellung: 2011.
Dipl.-Ing. Architekt Jürgen Krüger, Berlin: Entwurfs–, Genehmigungs– und Ausführungsplanung.

Wassertürme in Spandau

Wassertürme

Der Umbau der beiden Wassertürme hat im 2008 begonnen. Im großen Wasserturm-West (60 Meter) entstand auf 14 Etagen je eine rund 170 qm große Wohnung, im kleinen Wasserturm-Ost (26 Meter) auf 7 Etagen je eine rund 200 qm große Wohnung.

Treppenhaus Wasserturm Spandau

Treppenhäuser

Die Fluchttreppenhäuser und Aufzüge wurden in einem separaten Gebäude parallel zu den Türmen errichtet.

Grundriss Wohnung Wasserturm Spandau

Grundriss

Die Eigentumswohnungen in den Türmen verfügen alle über einen direkten Zugang durch einen verglasten Lift.

Wohnung Wasserturm Spandau

Wohnungen

Im 2008 begann der Umbau beider Türme zur Wohnraumnutzung. Sieben Wohnungen im kleinen und 12 Wohnungen im großen Turm wurden etabliert.

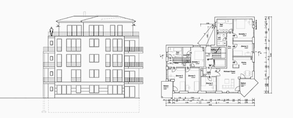
Paulsborner Straße 67/68, Berlin

Objektart: Neubau Mehrfamilienhaus 9 WE inkl. TG sowie Townhouse. Gesamtwohnfläche: ca. 1.023 qm. Baujahr: 03/2010-06/2011.
Dipl.-Ing. Architekt Jürgen Krüger, Berlin: Entwurfs– und Genehmigungsplanung.

Wohnhaus & Villa, Paulsborner Straße 67/68.

Wohnhaus & Villa

Alle Wohnungen verfügen über Tiefgaragenstellplätze, das Townhouse über zusätzliche Stellplätze im Untergeschoss.

Lageplan, Paulsborner Straße 67/68.

Lageplan

Auf einer Grundstücksgröße von ca. 738 qm wurden diese Wohneinheiten mit einer Gesamtwohnfläche von ca. 1.023 qm in zentraler und dabei ruhiger Lage schlüsselfertig erstellt.

Wohnhausdetail, Paulsborner Straße 67/68, Wohnhaus

Grundrisse

Das in 2011 fertiggestellte Mehrfamilienhaus sowie das separate Townhouse bietet alle Vorteile anspruchsvollen städtischen Wohnens.

Wohnhaus & Villa, Paulsborner Straße 67/68, Fassaden

Ansichten

Fassaden des Wohnhauses & Villa, Paulsborner Straße 67/68, Halensee, Berlin-Grunewald.

Neubau von 8 Eigentumswohnungen, Akazienallee 33, Berlin-Westend

Projektart: Neubau. Nutzung: Eigentumswohnungen. Wohnfläche: 1200 qm. Zeitraum Planung: 2011-2012. Bauherr: GbR Akazienallee.
Dipl.-Ing. Architekt Jürgen Krüger, Berlin: Entwurfs–, Genehmigungs– und Ausführungsplanung.

Neubau von 8 Eigentumswohnungen, Akazienallee 33.

Strassenansicht

Das Haus liegt von der Straße etwas zurückgesetzt und eingebettet in einen hübschen, für diese Wohngegend typischen Vorgarten.

Neubau von 8 Eigentumswohnungen, Akazienallee 33.

Fassade & Grundriss 1.OG

Das Wohnhaus hat sieben Eigentumswohnungen und einer Townhousemaisonette mit eigenem Garten.

Neubau von 8 Eigentumswohnungen, Akazienallee 33.

Geschoss-Wohnung

Vom Boden bis fast zur Decke reichende, große Fenster, angenehme Raumhöhen erzeugen insgesamt ein sehr harmonisches Wohngefühl.

Umbau der Büroflächen 1.OG & 5.OG in der Rosenthaler Straße, 10178 Berlin

Projektart: Umbau. Nutzung: Büroräume. Zeitraum Planung: 2011-2012.
Dipl.-Ing. Architekt Jürgen Krüger, Berlin: Entwurfs–, Genehmigung– und Ausführungsplanung.

Innenansicht Rosenthalerstr. SAP Deutschland AG & Co. KG.

Innenansicht

Eingangsbereich der SAP Deutschland AG & Co. KG.

Grundrisse Rosenthalerstr. 1.OG & 5.OG

Grundriss 1.OG & 5.OG

Die im 1.OG & 5.OG umzubauenden Flächen sollen als Besprechungs-, Healthcare-, Ruhe-, Schulungs- und vor allem Büro- und Großraumbüroflächen genutzt werden.

Strassenansicht des Bürogebäudes der SAP Deutschland AG & Co. KG

Fassade

Strassenfassade des Bürogebäudes der SAP Deutschland AG & Co. KG an der Rosenthaler Straße in Berlin.

Wohnhaus Goyastrasse 6, 13086 Berlin

Projektart: Neubau, 4 Townhouses. Nutzung: Eigentumswohnungen + Garage. Wohnfläche: 575 qm. Baujahr: 2013-2015.
Dipl.-Ing. Architekt Jürgen Krüger, Berlin: Entwurfs-, Genehmigung- und Ausführungsplanung.

Strassenseite Goyastrasse 6, 13086 Berlin–Weißensee

Ansicht Straßenseite

Der Neubau besteht aus 4 zusammenstehenden, aber funktional und rechtlich voneinander unabhängigen Stadthäusern.

Ansicht Goyastrasse 6, 13086 Berlin–Weißensee

Ansicht

Ansicht Straßenseite des Wohnhauses Goyastr. 6, Berlin-Weißensee.

Lageplan Goyastrasse 6, 13086 Berlin–Weißensee

Lageplan

Das Wohnhaus befindet sich im Bezirk Weißensee, der über eine gute Infrastruktur verfügt, was ihn für jünge Familien besonders attraktiv macht.

Wohnhaus Johanniterstr. 2, Berlin–Kreuzberg

Projektart: Neubau von 20 Eigentumswohnungen. Nutzung: Eigentumswohnungen + Garage. Baujahr: 2014-2015.
Dipl.-Ing. Architekt Jürgen Krüger, Berlin: Entwurfs- und Genehmigungsplanung.

Strassenseite Johanniterstr. 2, Berlin–Kreuzberg

Ansicht Straßenseite

Der Neubau von 20 Eigentumswohnungen in Berlin-Kreuzberg.

Schnitt Johanniterstr. 2, Berlin–Kreuzberg

Schnitt

Schnitt Johanniterstr.2, Berlin-Kreuzberg, 1:100.

Lageplan Johanniterstr. 2, Berlin–Kreuzberg

Lageplan

Ziel war, mit der Nachverdichtung am Standort die spezifische Qualität des Quartiers zu erhöhen und Freiräume aufzuwerten.

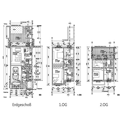
Stadthäuser Ludwig-Lesser-Straße, 16761 Henningsdorf

Lage: Ludwig-Lesser-Straße in 16761 Hennigsdorf, in unmittelbarer Nähe südlich des Rathauses und des S-Bahnhofes gelegen.
Architekt: Dipl.-Ing. Architekt Jürgen Krüger, Berlin.

Ansichten Stadthäuser Ludwig-Lesser-Straße, Henningsdorf

Ansichten

Auf dem Grundstück werden insgesamt 12 Stadthäuser (8 Reihenhofhäuser und 4 Doppel-haushälften) in unterschiedlichen Größen errichtet.

Lageplan Stadthäuser Ludwig-Lesser-Straße, Henningsdorf

Lageplan

Auf einer Grundstücksgröße von ca. 738 qm wurden diese Wohneinheiten mit einer Gesamtwohnfläche von ca. 1.023 qm in zentraler und dabei ruhiger Lage schlüsselfertig erstellt.

Grundrisse Stadthäuser Ludwig-Lesser-Straße, Henningsdorf

Grundrisse

Grundrisse des Stadthauses: Erdgeschoss, 1.OG und 2.OG, Henningsdorf.

Strassenfassade Stadthäuser Ludwig-Lesser-Straße, Henningsdorf

Strassenfassade

Die straßenseitige Fassade wird sowohl mit horizontalen als auch vertikalen baulichen Versätzen der Häuser variabel aufgegliedert.

Top